Ich habe vor kurzem einen defekten CSV 500 erworben.
Netzteil und Vorverstärker sind top in Schuss. Leider war die Enstufe defekt.
Die Endstufen-Transistoren und einige andere Transistoren ( 40409) auf der Endstufen-Platine waren defekt ( Kurzschlüsse).
Ich habe alle möglichen Teile auf der Endstufe geprüft und teilweise ausgetauscht.
Ich denke ich habe alle beachtet.
Elkos mit ESR-Messgerät und Kapazitästmessgerät getestet, Widerstände nachgemessen, Dioden und Transistoren mit einem digitalen Halbleitertester überprüft.
Für die defketen Transistoren habe ich möglichst exakte Ersatztypen besorgt.
Die alten defekten Trimmer-Potis hab ich gegen neue ausgetauscht
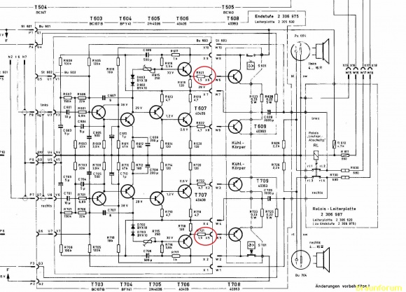
Es schien soweit alles ok zu sein, ales ich aber den Verstärker zum test in Betrieb nahm sind die beiden Widerstände R 621 und r 721 ( das sind die beiden 1,5 Ohm - Widerstände ds rechten und linken Kanals, die zur basis der Endstufentransistoren führen ) durchgebrannt.
Woren mag es liegen. Liegt es an der Einstellung der beiden Trimmer-Potis ? Wie stell ich die ein ?
Weiß Jemand Rat ?





